Planen, Pflegen, Wohnen Wohnsiedlungen der Moderne
Großes Entwerfen, 10 ECTS
Studierendenarbeiten
Wintersemester 2024/25
Betreuung:
Heike OEVERMANN
Bernd EULER-ROLLE
Johann GALLIS
Luisa OMONSKY
Johannes PAINTNER
Ausgangspunkt der Entwurfsveranstaltung waren drei denkmalgeschützte Wohnsiedlungen in Österreich: die ab 1875 im Umfeld der ehemaligen Waffenfabrik Werndl errichtete Arbeitersiedlung Eisenfeld in Steyr mit zeilenartig angeordneten Wohnhäusern, die Knappensiedlung in Hüttenberg aus den 1920er Jahren, eine kompakte, dörflich wirkende Anlage mit Holzblockbauten im ländlichen Kärnten, sowie der Rabenhof in Wien, ein groß angelegter Gemeindebau des Roten Wien mit über 1.100 Wohnungen und vielfältiger sozialer Infrastruktur.
Anhand dieser drei sehr unterschiedlichen Beispiele setzten sich die Studierenden mit dem Denkmalpflegeplan als Werkzeug auseinander. Dieser diente nicht nur der strukturierten Analyse und Bewertung der baulichen Substanz, sondern wurde auch als Instrument für eine gestalterische Weiterentwicklung genutzt. Ziel war es, die städtebaulichen, architektonischen und sozialen Qualitäten der Siedlungen zu verstehen und ein Konzept für eine behutsame und zukunftsorientierte Entwicklung zu erarbeiten. Neben der bauhistorischen und räumlichen Analyse spielten die Perspektiven der heutigen Bewohnerinnen und Bewohner eine zentrale Rolle. Was wurde an der Siedlung geschätzt? Was sollte erhalten bleiben, was fehlte, was störte? Welche Rolle spielte der Denkmalschutz im Alltag? Die Antworten auf diese Fragen flossen direkt in die Konzepte ein.
So entstanden Denkmalpflegepläne, die über die reine Dokumentation hinausgingen. Sie verbanden den respektvollen Umgang mit dem Bestand mit konkreten Entwurfsideen, die den Charakter der Siedlungen weiterdenken und ihre Zukunftsfähigkeit stärken. Dabei wurden die Siedlungen nicht als abgeschlossene historische Objekte betrachtet, sondern als lebendige Räume mit Potenzial für Veränderung und Weiterentwicklung.
RABENHOF, WIEN
Entwurf:
Kiymet Bulut
Felix Daumüller
Adrian Stibi
Mitarbeit:
Hauke Hatje
Nathan Palinker
Der Rabenhof ist ein exemplarisches Beispiel für die architektonischen und sozialen Ziele des „Roten Wien“. Als Gemeindebau für rund 5.000 Bewohner:innen in expressionistischer Formensprache, samt öffentlichen Gemeinschaftsbereichen und Geschäftslokalen, verbindet er standardisierte Elemente durch immer neue Kombinationen zu individuellen Gebäuden. Diese Variation im klassischen ‚Superblock‘ schafft einen außergewöhnlichen Identifikationswert mit architektonischer Qualität.
In der Logik des Denkmalpflegeplans wurden, auf Basis des erfassten Bauteilkatalogs und der Wertung in Bedeutungsebenen, strategische Maßnahmen zur Pflege, Reparatur, Rückführung und Adaption entwickelt. Mit starker Einbindung der Bewohner:innen erfolgt die Erhaltung in kleinteiligen, individuellen Schritten gemäß den erfassten Bauteilen. Die architektonische Substanz bleibt gewahrt, Schäden werden gezielt im Sinne des Katalogs repariert, um die ästhetischen und sozialen Qualitäten gemäß der bauzeitlichen Intention zu sichern.
Der Entwurfsteil behandelt eine weiterführende Freiraumgestaltung. Nach der Analyse der Höfe und ihrer Qualitäten wurden Eingriffstiefen für eine langfristige Entwicklung definiert. Aus der Logik des Bestands werden dabei Bauteile entworfen, sowie daraus entwickelte Konfigurationen zu Kombinationen zusammengefügt. Ziel ist es, Anforderungen zur zukunftsfähigen Nutzung gerecht zu werden und dabei die Formensprache und Entstehungslogik des Rabenhofs weiterzuentwickeln, sodass ein Katalog zur fortschreitenden Ergänzung und Anpassung entstanden ist, der auch verlorene Qualitäten des sozialen Raums zurückbringt.
ARBEITERSIEDLUNG EYSNFELD, STEYR
Entwurf:
Matea Cerkez
Alisa Schmidt
Lucia Wiesner
Mitarbeit:
Teodora Boneva
Maximilien Hermes
Anna-Mariia Markova
Deniz Yalcindag
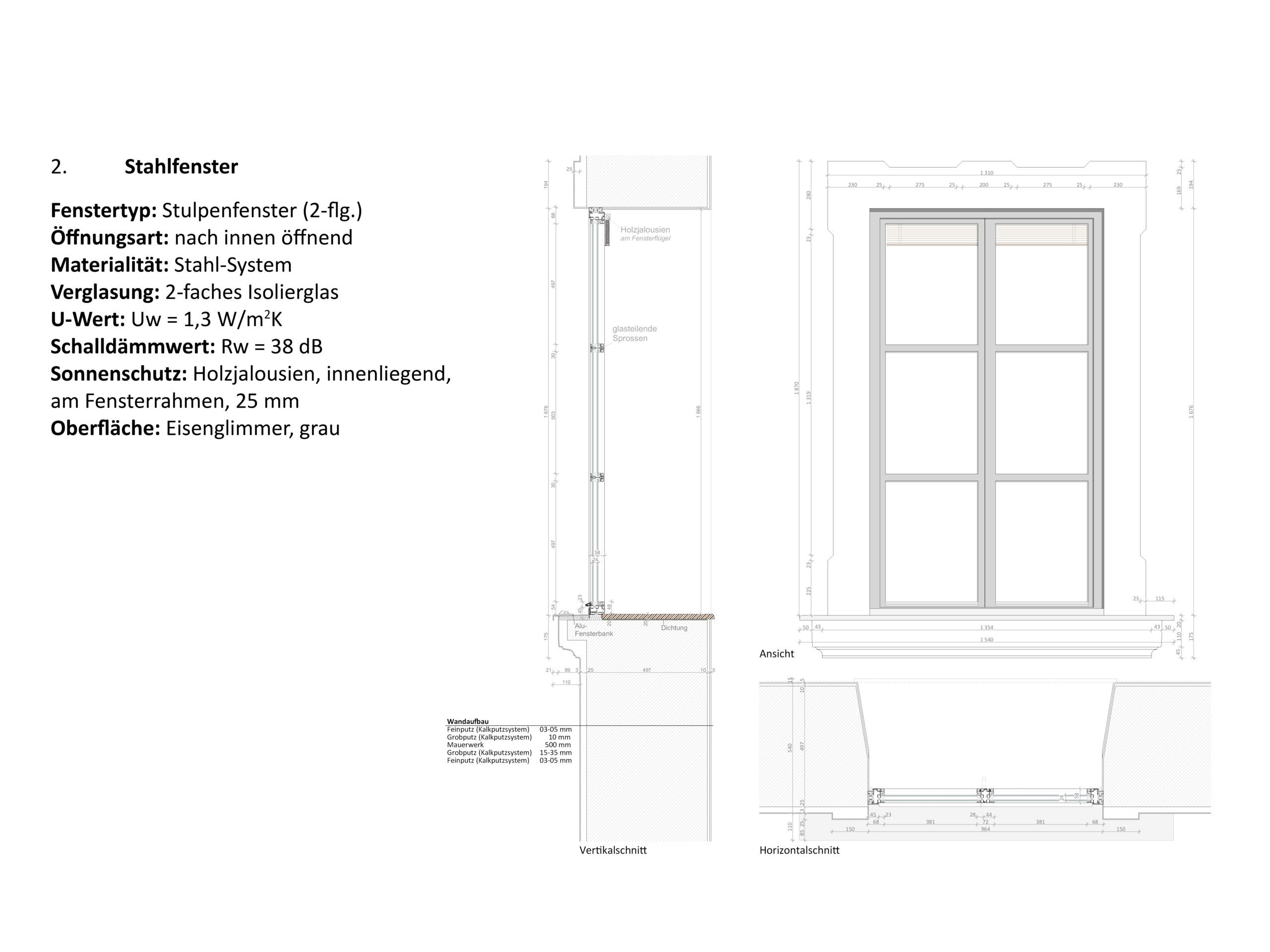
Der Entwurf zur Eysnfeldsiedlung in Steyr baut auf dem im Zuge der Lehrveranstaltung „Planen, Pflegen und Wohnen“ erarbeiteten Denkmalpflegeplan auf. Dabei wurde der Leitfaden des Bundesdenkmalamts aus dem Jahr 2024 angewendet und in der Auseinandersetzung mit dem Bestand konkret erprobt. Ziel des Entwurfs ist es, den historischen Charakter der denkmalgeschützten Arbeitersiedlung mit ihrer zeilenartigen Struktur und den (Nutz-)Gärten zu bewahren und zugleich an heutige Wohnbedürfnisse anzupassen. Im Mittelpunkt des Entwurfs steht eine umfangreiche Variantenanalyse, bei der unterschiedliche Perspektiven – denkmalpflegerische, gestalterische und soziale – gegeneinander abgewogen wurden. Zentrale Maßnahmen sind Grundrissvarianten, barrierefreie Zugänge, die reversible Dämmung von Kellerdecke und Dachboden sowie ein differenziertes Farbkonzept auf Basis restauratorischer Befunde. Auch Fenster- und Stiegenhausgestaltung werden präzise entwickelt. Die Anliegen der Bewohner:innen flossen dabei aktiv in den Entwurfsprozess ein.
KNAPPENSIEDLUNG, HÜTTENBERG
Potenziale weiterschreiben
Entwurf:
Markus Häusler
Mitarbeit:
Sara Llozana
Stefania-Ioana Melean
Maja Munck
Kai Lars Thomaschewski
Der Entwurf zur Knappenbergsiedlung verfolgt das Ziel, den Siedlungsraum behutsam weiterzuentwickeln, ohne die bestehende Struktur zu überformen. Es werden platzgestalterische Maßnahmen vorgestellt, die eine qualitative Aufwertung und bessere Nutzbarkeit im und um den Straßenraum ermöglichen sollen. Der Ansatz basiert auf punktuellen, sensiblen Eingriffen, die den denkmalpflegerischen Charakter respektieren. Die Situationen A, B und C (Terrasse, Platz und Nische) beschreiben exemplarische Maßnahmen, die als Regelwerk für Veränderungen in privaten Bereichen dienen können. Zentrale Bedeutung erhält der neu gestaltete Hauptplatz mit einem ergänzenden Aussichtsplateau, das als identitätsstiftender Ort gedacht ist. Diese Intervention soll das Gemeinschaftsgefühl stärken und neue Aufenthaltsqualitäten im Zentrum schaffen. Der Entwurf zeigt so auf, wie mit gezielten, respektvollen Maßnahmen eine nachhaltige Aufwertung der Siedlung möglich ist.















































